2005. aastal loodud eriala eesmärk on säilitada, jätkata ja ajakohastada rahvuslikku käsitööd ehituse vallas. Õpingute käigus omandame põhjalikud teadmised rahvuslikust ehitustraditsioonist, eriti palkehitusest, õpime tundma ja kasutama nii igivanu kui moodsaid ehitusvõtteid ja töövahendeid. Sarnaselt teistele erialadele on siingi oluline õppida tundma kohalikke ehitusmaterjale ja nende kasutusvõimalusi. Õppeaja jooksul on palju iseseisvat mõtlemist, loovust ja analüüsioskust arendavaid ning insenertehnilisi aineid, mis on traditsioonilise ehitaja kutse saamiseks väga olulised. Peale teoreetilise ettevalmistuse moodustab õppetööst suure osa tegelike käsitööoskuste ning –harjumuste omandamine. Selleks käime harjutamas kohalike meistrite, ettevõtete ning asutuste juures, et luua juba õpingute ajal tihe kontakt tulevase tööpõlluga.

Eriala lõpetanu valdab ehitusprotsessi joonistest ja eelarvest harjalaudade paigalduseni. Rahvusliku ehituse eriala lõpetanu on potentsiaalne väikeettevõtja või ehitusmeister, kelle pädevus ühendab endas käsitööoskused, tehnilise mõtlemise ja ilumeele.

KAVANDAMINE

Siia stendile oleme kokku pannud ehitustöödele eelnevat kavandamise protsessi tutvustava osa. Esimesel aastal saadakse ülevaade joonise koostamise põhimõtetest ja töötatakse pliiatsi ning joonlauaga – nii on töö tempo rahulikum ja aega iga joone tähendus kujutatava objekti juures põhjalikult läbi mõelda. Kuigi traditsioonilise ehituse erialal käib töö ehitusplatsil valdavalt käsitööriistadega, oleme kavandamisel abiks võtnud ka kaasaegsed projekteerimistarkvarad. Hoone kavandamine kolmemõõtmelisena annab parema ülevaate loodava objekti proportsioonidest ja võimaluse teha kiireid muudatusi.

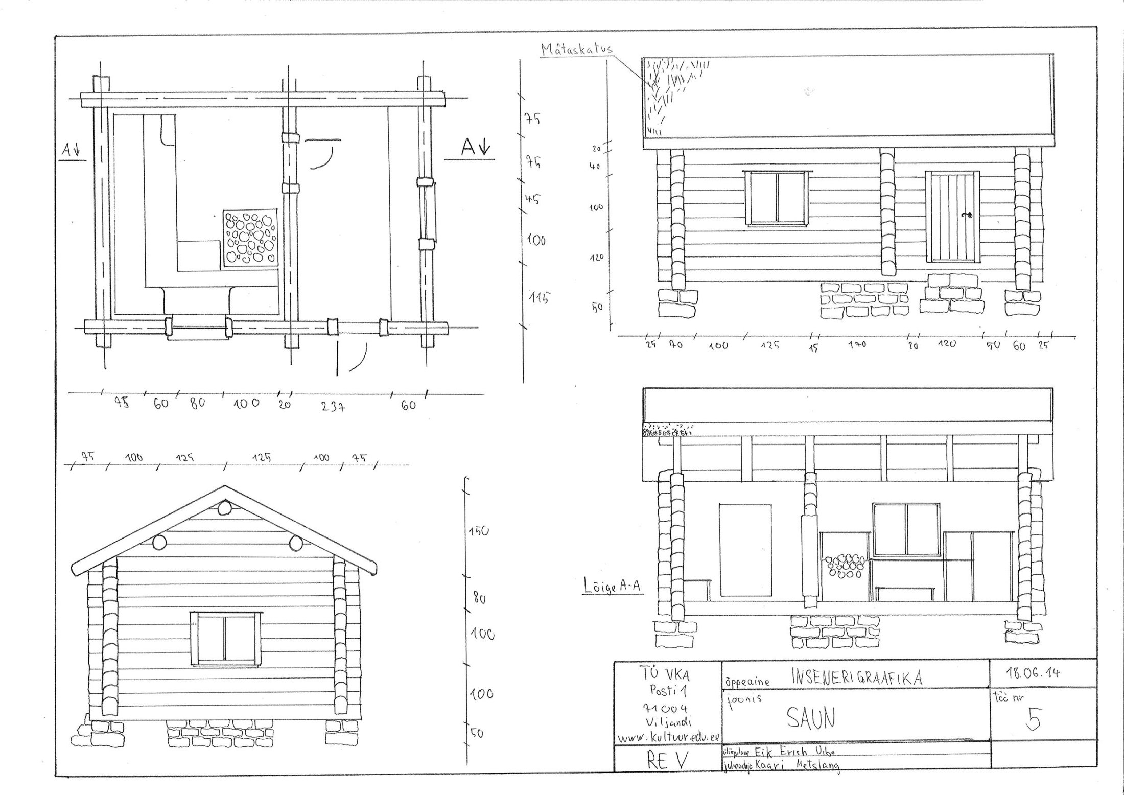
Selle väljapaneku keskmes olev saun on mahult küll väike, kuid ehituslikult mitmekülgne põhjalikke teadmisi ja täpsust vajav hoone. TÜ Viljandi Kultuuriakadeemia vilistlane Andres Ansper koostas 2011 aastal lõputööna „Igamehe suitsusauna aabitsa“ ehk käsiraamatu algajale saunaehitajale. Siin kirjeldatakse hulga näidete ja skeemide abil, millega saunaehitusel arvestada tuleb – alates materjali valikust kuni täpselt kirjeldatud töövõteteni.

Nelja aasta õppetöö tulemus vormitakse sageli just sauna kavandamise ja ehitamise kujul lõputööks. Ehitajale on saun üheaegselt parajalt väike mahu poolest, et see kasvõi üksi valmis ehitada, samas piisavalt keerukas, et kavandamisel analüüsida võimalikke lahendusi ning ehitamisel läbi teha kõik olulised etapid vundamendist harjalauani.

 

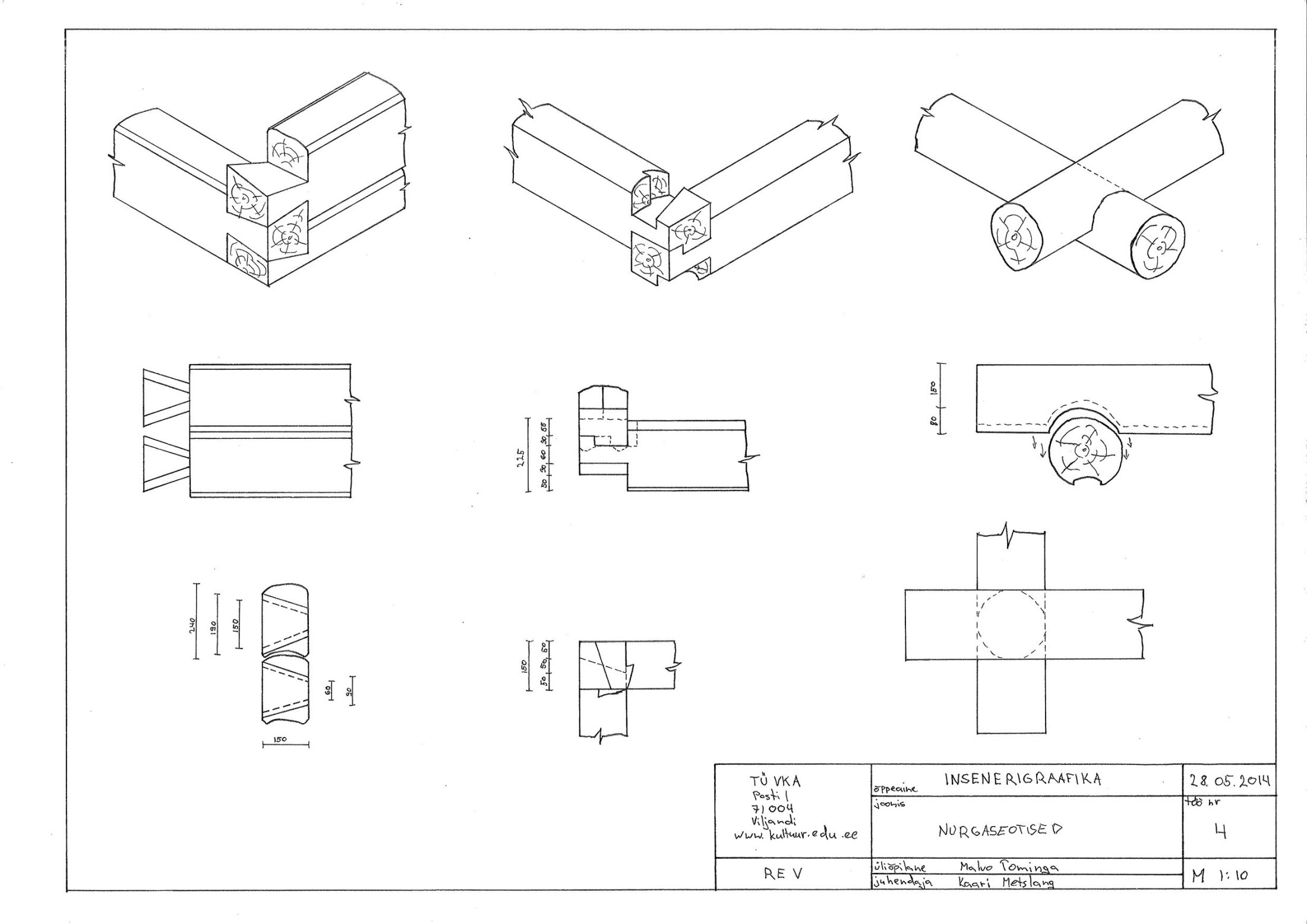
Jooniste ja skeemide autorid Mark Netšajev, Mart Eensaar, Laur Oberschneider, Malvo Tominga, Anu Arm, Eik Erich Uibo (täpsustada loetelu)

SAUN

Tutvustame rahvusliku ehituse eriala tegemisi sauna näitel, mis on ühelt poolt eestlaste ehituspärandis olulisel kohal paiknev hoonetüüp, teisalt meie eluviisi lahutamatu osa. Saunaga on ajalooliselt seotud mitmeid tähendusi ja traditsioone, millele ehk tänapäeval nii väga ei mõelda, kuid mida me eneses ometi edasi kanname. Täpsemalt…

TRADITSIOONILINE MULGI SUITSUSAUN

Rahvusliku ehituse eriala I lennu vilistlane Tarmo Tammekivi valis oma 2009. aastal valminud lõputöö teemaks mulgi suitsusauna ehituse. Töö kitsamaks eesmärgiks oli  projekteerida ja ehitada Männiku Metsatallu Viljandimaal kohalikel traditsioonidel põhinev saun arvestades turismitalu olmelisi erivajadusi. Eeltööna tutvus Tarmo põhjalikult Mulgimaa suitsusaunade ehitusliku eripäraga. Töö laiemaks eesmärgiks oli julgustada inimesi ehitama ehedat piirkondlikest eripäradest lähtuvat, kuid kaasaegsete vajaduste ja teadmistega kooskõlas olevat sauna. Täpsemalt…